Watch our Auctions Live!
Watch our Auctions Live!

Parisian Flair | Iconic Ponsonby Soul

2G/38 Douglas Street

1

1

1

1

1

1


share

Marketed by Will Gluestein

Parisian Flair | Iconic Ponsonby Soul


2G/38 Douglas Street

Ponsonby, Auckland

Set Date of Sale (Unless Sold Prior) at 11.03.2026 at 2:00 PM

Marketed by Will Gluestein

Rarely does a property capture such a perfect balance of historic character and contemporary sophistication. Situated within the celebrated Summit building, this Parisian-style loft offers a voluminous, sun-drenched retreat just footsteps from the vibrant heartbeat of Ponsonby Road.

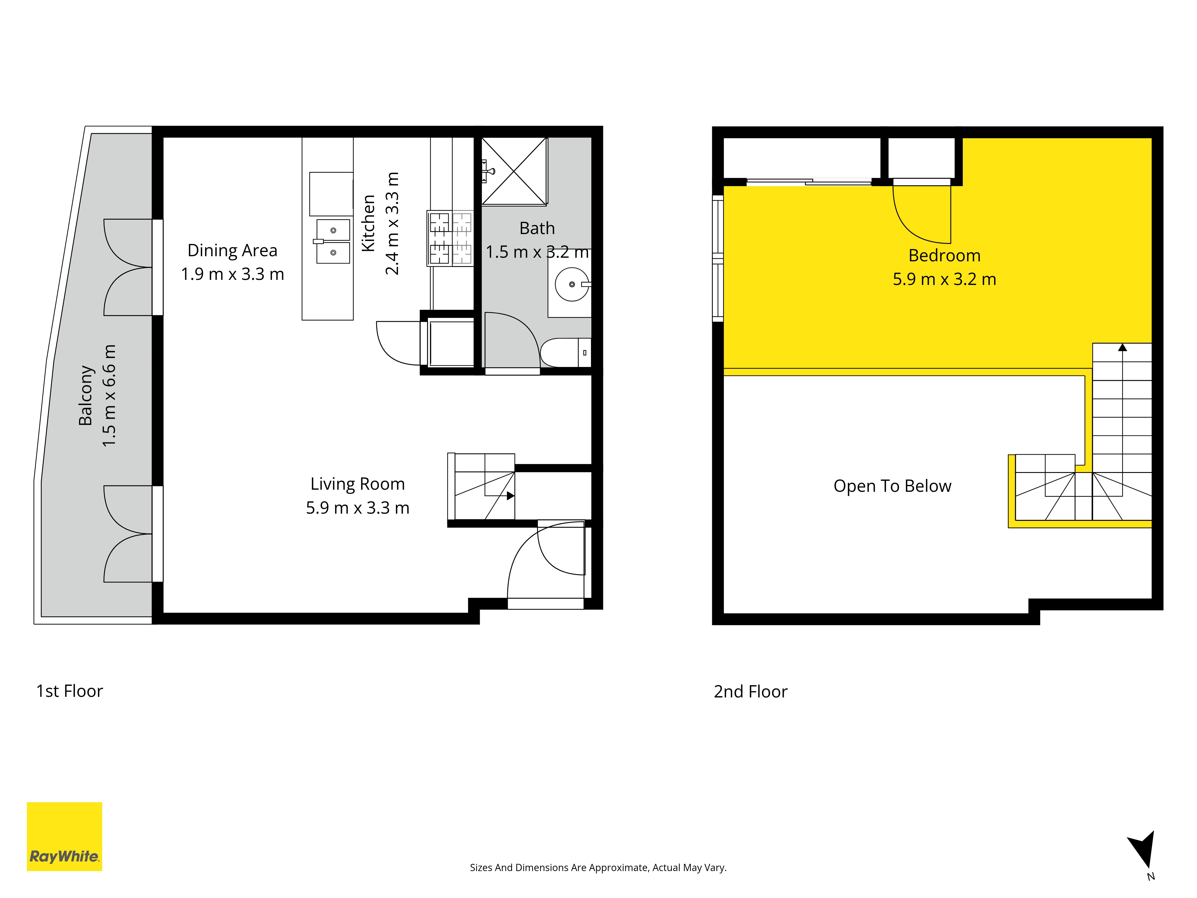
The sheer scale of the home is the first thing that strikes you, defined by soaring five-metre ceilings and expansive windows that invite an abundance of natural light to pour in throughout the day. Rich Matai floorboards provide a warm, organic contrast to the crisp white interiors, resulting in a bright, gallery-like atmosphere that is ready for you to move in and make your own. The layout is intelligently designed, featuring a generous mezzanine bedroom that overlooks the sun-filled living area, a stylish bathroom, and a sleek modern kitchen that makes entertaining effortless.

Whether you are seeking a high-character "lock-up-and-leave" for a busy professional lifestyle, a high-performing addition to an investment portfolio, or a stylish central bolt-hole, this residence is the ultimate solution. Enjoy the unique perks of being in one of Ponsonby's most iconic pet-friendly heritage buildings, complete with the convenience of secure undercover parking and a bright, airy energy that is hard to find in apartment living.

Located on Douglas Street, the location is truly second to none. You are just 200 metres from the best coffee, dining, and retail therapy Ponsonby has to offer, yet tucked away enough to enjoy your own private, sun-soaked sanctuary. If you value architectural character and effortless city-fringe convenience, this is a property you simply cannot overlook.

Contact Will today to experience the scale and soul of this loft for yourself.

Property Details

Suburb stats

Property ID PBY31234

Category
Apartment
Status
Current
Bedrooms
1
Bathrooms
1
Garaging
1

Inspection times

28 Feb 11:00AM - 11:30AM

07 Mar 11:00AM - 11:30AM


Local Schools

* While every effort has been made to ensure the information displayed is accurate, please check details directly with the school before making decisions based on this information.

Primary
Intermediate
Secondary
Richmond Road School - 260m away
Years 1-6
Co-ed
113 Richmond Road
09 376 1091


Ponsonby Intermediate - 890m away
Years 7-8
Co-ed
50 Clarence Street
09 376 0096


Auckland Girls' Grammar School - 990m away
Year 9-15
Girls
Howe Street
09 307 4180


Western Springs College - 2.3km away
Year 9-15
Co-ed
Motions Road
09 815 6730



Show on map

Make an Appointment

Send an enquiry about this property to the agent


Will Gluestein


Licensee Salesperson

Mobile: 021 494 924


You May Also Like

Ponsonby, 80 Lincoln Street

80 Lincoln Street


3

1

1

Ponsonby, 2G/38 Douglas Street

2G/38 Douglas Street


1

1

1

Ponsonby, 114 Clarence Street

114 Clarence Street


4

1

3

Ponsonby, 9 Bayard Street

9 Bayard Street


4

3

2

Suburb Stats

Ponsonby


Median sale price in January 2026

$1,750,000

17% last month
25% same time as
last year

Monthly Trend

Total Sales in January 2026

40% last month
3 sales
0% same time as
last year

Monthly Sales