Watch our Auctions Live!
Watch our Auctions Live!

A Standalone Start in Papakura

12 Rembrandt Place

3

1

2

3

1

2


share

Marketed by Jacqueline McGearty

A Standalone Start in Papakura


12 Rembrandt Place

Opaheke, Auckland

Set Date of Sale (Unless Sold Prior) at 16.12.2025 at 12:00 PM

Marketed by Jacqueline McGearty

This is the sort of home first buyers wait for. Standalone, freehold, and grounded in a style that has stood the test of time. In a market where townhouses are becoming the default, this feels like a smarter, more considered choice.

There is something enduring about a classic 1960s brick home. Solid, grounded and designed to offer a sense of permanence that feels increasingly rare. The facade sets the tone, understated and confident, hinting at the dependable living that lies within.

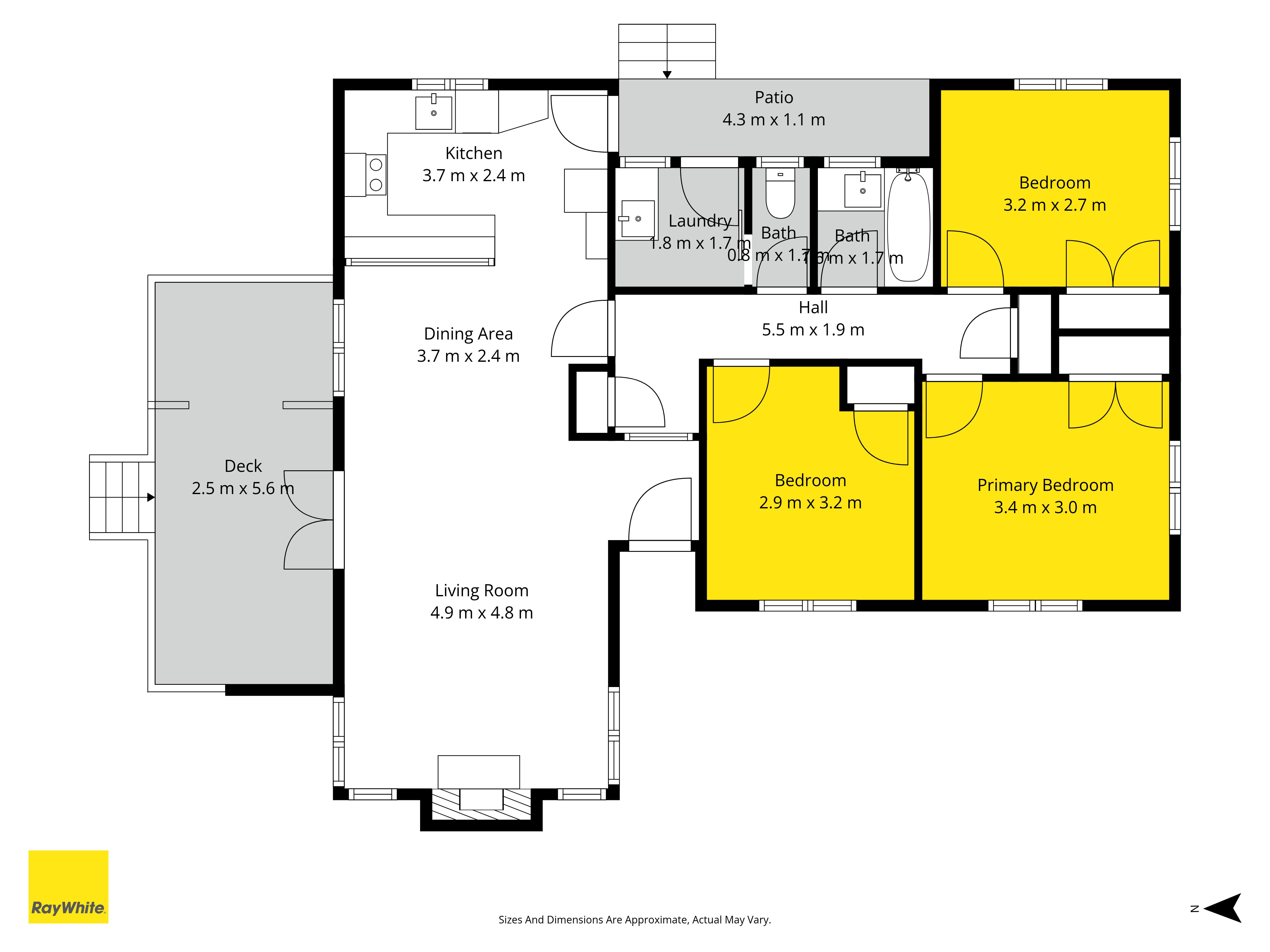
The home unfolds with a practical ease that prioritises comfort and functionality. Three well-proportioned bedrooms are complemented by an open plan kitchen, dining and living area that anchors the home and creates a natural hub for everyday life. It is a space that feels considered yet uncomplicated, allowing light to move freely and daily routines to flow.

Outside, the section strikes a perfect balance, with enough room for children to play or for you to indulge in a little gardening, without the burden of high maintenance. Off-street parking for two cars further reinforces the everyday practicality of this home. The location is key here, zoned for and in walking distance to good schools, close to local shops, and just moments from public transport, it's the perfect base.

A place to start, to grow and to settle into, with all the fundamentals already in place. Call Jacqueline today to book a private inspection!

Inspection times

30 Nov 12:00PM - 12:30PM

06 Dec 10:30AM - 11:00AM

07 Dec 12:00PM - 12:30PM

13 Dec 10:30AM - 11:00AM

14 Dec 12:00PM - 12:30PM

Property Details

Property ID PBY31034

Category
House
Status
Current
Bedrooms
3
Bathrooms
1
OSP
2
Land
371 m²


Local Schools

* While every effort has been made to ensure the information displayed is accurate, please check details directly with the school before making decisions based on this information.

Primary
Intermediate
Secondary
Opaheke School - 120m away
Years 1-8
Co-ed
Tasman Drive
09 298 5410


Opaheke School - 120m away
Years 1-8
Co-ed
Tasman Drive
09 298 5410


Papakura Intermediate - 1.1km away
Years 7-8
Co-ed
50 Settlement Road
09 298 8737


Rosehill Intermediate - 1.4km away
Years 7-8
Co-ed
Jupiter Street
09 298 5827


Rosehill College - 1.3km away
Year 9-15
Co-ed
5 Edinburgh Avenue
09 295 0661


Papakura High School - 1.4km away
Year 9-15
Co-ed
Willis Road
09 296 4400



Show on map

Make an Appointment

Send an enquiry about this property to the agent


Jacqueline McGearty


Licensee Salesperson

Mobile: 021 283 2033


You May Also Like

Opaheke, 12 Rembrandt Place

12 Rembrandt Place


3

1

2