Watch our Auctions Live!
Watch our Auctions Live!

Ready & Waiting

50F Home Street

3

2

4

3

2

4


share

Marketed by Will Gluestein

Ready & Waiting


50F Home Street

Grey Lynn, Auckland

Auction at 3 Pompallier Terrace, Ponsonby on 13.11.2025 at 2:00 PM

Marketed by Will Gluestein

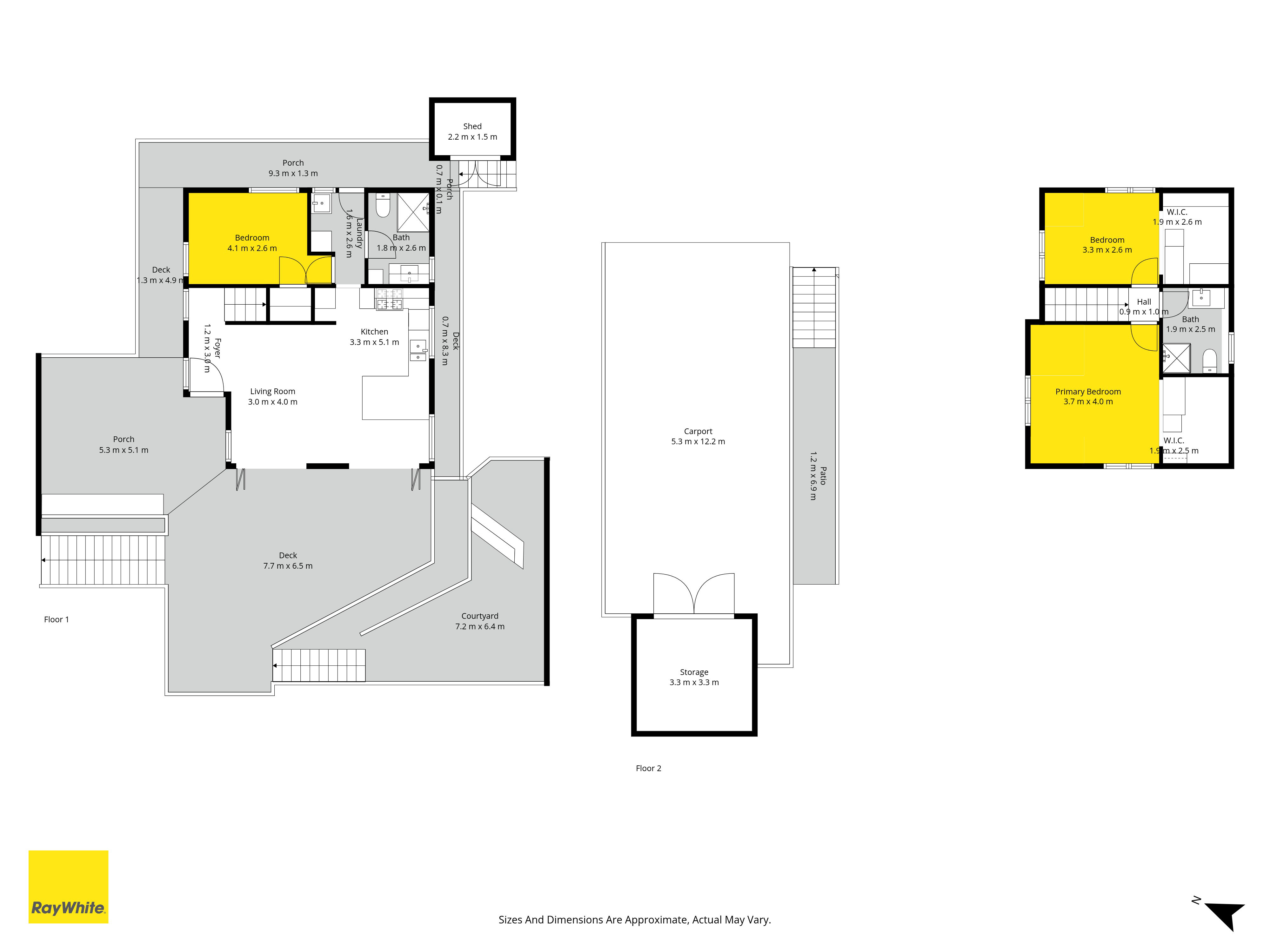
After 12 treasured years, our vendors have moved out and have firmly committed to their next chapter. This stunning, freshly renovated townhouse is now vacant and waiting for its new owner.

Tucked discreetly at the end of a private enclave, this home is a sanctuary of sun and privacy. The open-plan living, kitchen, and dining area is simply brilliant, bathing in sun and flowing effortlessly to two separate, lush, north-west facing courtyards. It's the ultimate setting for seamless indoor-outdoor entertaining.

The intelligent two-level layout offers three spacious bedrooms (two equipped with heat pumps for year-round comfort) and two stylish, modern bathrooms.

Forget struggling for a car park, This is a rare find with off-street parking for up to four cars. As an added bonus, you also get a large storage shed!

The location is unparalleled-moments from the vibrant bars and cafes of Ponsonby, Grey Lynn, and Kingsland, with easy motorway and city transport access.

The ultimate bonus for families: Just at the top of your driveway, find a reserve, playground, and basketball court-extending your living space without the maintenance!

The perfect low-maintenance, lock-up-and-leave city base, or your ideal first home buyer entry point into sought-after Grey Lynn.

At this price point - This opportunity won't last.

Property Details

Suburb stats

Property ID PBY31071

Category
House
Status
Current
Bedrooms
3
Bathrooms
2
OSP
4

Inspection times

25 Oct 1:00PM - 1:30PM

Auction time

13 Nov 2:00PM

3 Pompallier Terrace, Ponsonby


Local Schools

* While every effort has been made to ensure the information displayed is accurate, please check details directly with the school before making decisions based on this information.

Primary
Intermediate
Secondary
Freemans Bay School - 1.0km away
Years 1-6
Co-ed
Wellington Street
09 360 1572


Ponsonby Intermediate - 2.1km away
Years 7-8
Co-ed
50 Clarence Street
09 376 0096


Auckland Girls' Grammar School - 1.3km away
Year 9-15
Girls
Howe Street
09 307 4180


Western Springs College - 4.4km away
Year 9-15
Co-ed
Motions Road
09 815 6730



Show on map

Make an Appointment

Send an enquiry about this property to the agent


Will Gluestein


Licensee Salesperson

Mobile: 021 494 924


You May Also Like

Grey Lynn, 13 Fisherton Street

13 Fisherton Street


5

2

2

Grey Lynn, 12/28 Williamson Avenue

12/28 Williamson Avenue


3

2

2

Grey Lynn, 4 Wallingford Street

4 Wallingford Street


4

3

4

Grey Lynn, 50F Home Street

50F Home Street


3

2

4

Suburb Stats

Grey Lynn


Median sale price in September 2025

$1,775,000

14% last month
8% same time as
last year

Monthly Trend

Total Sales in September 2025

78% last month
16 sales
33% same time as
last year

Monthly Sales