Watch our Auctions Live!
Watch our Auctions Live!

A Masterpiece of Industrial Style

103/14 Karaka Street

1

1

1

1

1

1


share

Marketed by Will Gluestein

A Masterpiece of Industrial Style


103/14 Karaka Street

Eden Terrace, Auckland

Sold - 11.12.2025

Marketed by Will Gluestein

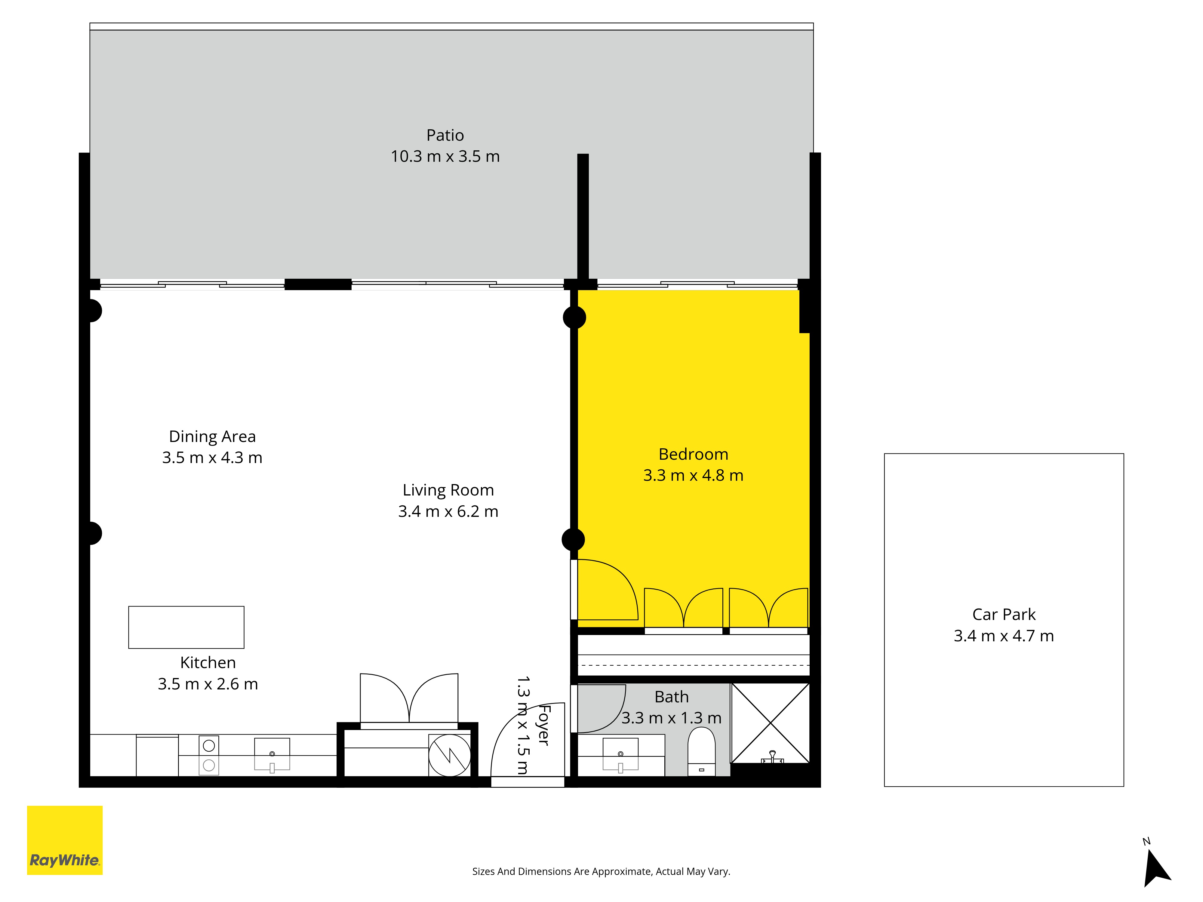
Welcome to '59 France,' a multi-award-winning development by Urban Collective and one of Auckland's most prestigious addresses. This newly completed warehouse apartment is a masterpiece of sophisticated design, blending luxurious 3.5m stud heights with a timeless industrial aesthetic. Here, soaring ceilings, exposed beams, and polished concrete floors combine to create a truly spectacular living space.

Step outside your door to your own 35sqm (more or less) private courtyard. Plus you have direct access to the residents' 400sqm north-facing courtyard, perfect for enjoying all-day sun.

Spanning a generous 77sqm internally (more or less), this one-bedroom, one-bathroom apartment offers the ultimate city-fringe lifestyle. It has all the modern comforts you need, including a heat pump and air conditioning. With its own car park and low body corporate fees, this home ticks every box for discerning buyers.

The location is unbeatable. You're just a short walk from the new K Road CRL station and have easy access to the CBD, Newmarket, Ponsonby, and all major motorways. Enjoy the vibrant nightlife, shopping, and dining of the surrounding suburbs right on your doorstep.

Our UK-based vendor is highly motivated, presenting a unique opportunity to own this stylish modern apartment.

Contact Will today to arrange your private inspection.

Property Details

Property ID PBY31045

Category
Apartment
Status
Sold
Bedrooms
1
Bathrooms
1
Garaging
1


Local Schools

* While every effort has been made to ensure the information displayed is accurate, please check details directly with the school before making decisions based on this information.

Primary
Intermediate
Secondary
Newton Central School - 550m away
Years 1-6
Co-ed
Monmouth Street
09 378 6883


Kowhai Intermediate - 1.4km away
Years 7-8
Co-ed
26 Onslow Road
09 846 7534


Pasadena Intermediate - 3.6km away
Years 7-8
Co-ed
Moray Place
09 846 2169


Auckland Girls' Grammar School - 610m away
Year 9-15
Girls
Howe Street
09 307 4180


Western Springs College - 3.6km away
Year 9-15
Co-ed
Motions Road
09 815 6730


Mt Albert Grammar School - 3.9km away
Year 9-15
Co-ed
36 Alberton Ave
09 846 2044



Show on map

Make an Appointment

Send an enquiry about this property to the agent


Will Gluestein


Licensee Salesperson

Mobile: 021 494 924


You May Also Like

Mount Eden, 18 Sandringham Road

18 Sandringham Road


4

1

6

Mount Eden, 206/30 Enfield Street

206/30 Enfield Street


1

1

Eden Terrace, 301/43 Virginia Avenue East

301/43 Virginia Avenue East


2

1

2